- 価格
-
1,000万円
返済例月々-円
- 面積
-
建物: 442.91(133.98坪)㎡
土地: 1388.43(420坪)㎡
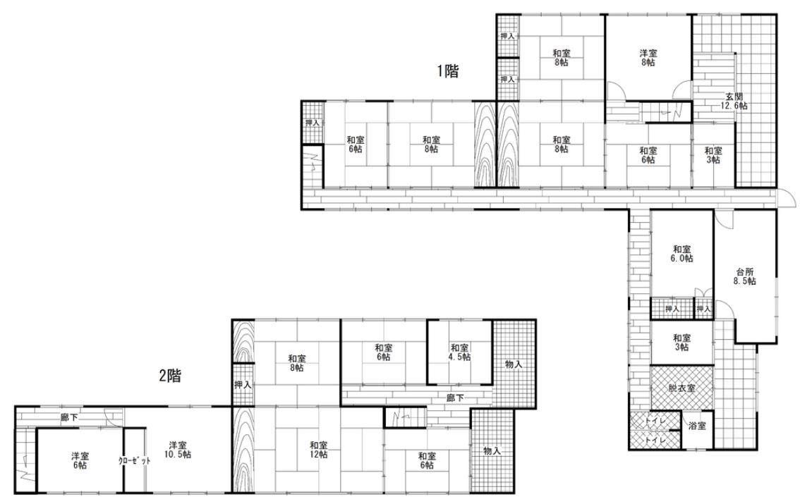
- 間取り
- 16LDK
福山市新市町大字戸手 中古一戸建ての物件写真
- スタッフのおすすめPOINT!
-
◆建坪約128坪、間取り14LDK!敷地は広々約460坪!!大正時代の邸宅ですが、駅の近くですので土地としてお探しの方、リフォームをされて事業でのご活用もオススメです♪
物件担当者岡田 佑一
- 周辺に生活便利施設そろってます!!
- スーパー近くで、お買いもの便利です。
福山市新市町大字戸手 中古一戸建てのアクセスマップ
福山市新市町大字戸手 中古一戸建ての物件概要
| 物件番号 | 46216 |
|---|---|
| 住所 | 福山市新市町戸手 |
| 最寄駅 | 徒歩4分 |
| 小学校区 | 戸手小学校 |
| 中学校区 | 新市中央中学校 |
| 間取 | 16LDK |
| 土地面積 | 1388.43㎡ 公簿 |
| 建物面積 | 442.91㎡ |
| 築年月日 | 1926年01月 |
| 構造 | 木造 2階建 |
| 駐車場 | 有(駐車場料金:-円) |
| 接道状況 | 北東 幅員:5.0m 公道 接道:30.0m |
| 用途地域 | 第一種住居地域 |
| 建ぺい率 | 60% |
| 容積率 | 200% |
| 地目 | 宅地 |
| 現況 | 空家 |
| 引渡 | 相談 |
| 取引態様 | 仲介 |
| 情報更新日 | 2026/04/17 |
| 次回更新予定日 | 2026/05/17 |
福山市新市町大字戸手 中古一戸建てのローンシミュレーション
住宅ローンもおまかせください!
現在の店頭基準金利は2.475%当社優遇金利での住宅ローンだと
借入額1000万円(税込) 金利% 年ローン
- 毎月返済額
- 円
頭金0円でボーナス払いなしの場合の金額です。
また、お客様のご条件により金利の優遇幅が変動する場合があります。
返済例は全額ローン(ボーナス返済0円)、元利金等支払、借入期間35年、変動金利(金利優遇適用後)の0.875%にて計算(現在2026年04月適用)
住宅ローンシミュレーターを用いて算出したものであり、実際の借り入れ事例を示すものではなく、また、実際の支払い金額と若干計算結果が異なる場合があります。金利優遇にはいくつかの条件がございます。条件等により優遇が適用されない場合もございます。上記金利は、優遇金利を確約するものではありません。また、お借り入れの際は、銀行事務手数料等別途諸費用が発生する場合がございます。詳細につきましては上記金融機関公式サイト、もしくは弊社住宅ローンアドバイザーにご相談ください。





