- 価格
-
450万円
返済例月々-円
- 面積
-
建物: 109.08(33坪)㎡
土地: 263.70(79.77坪)㎡
- 間取り
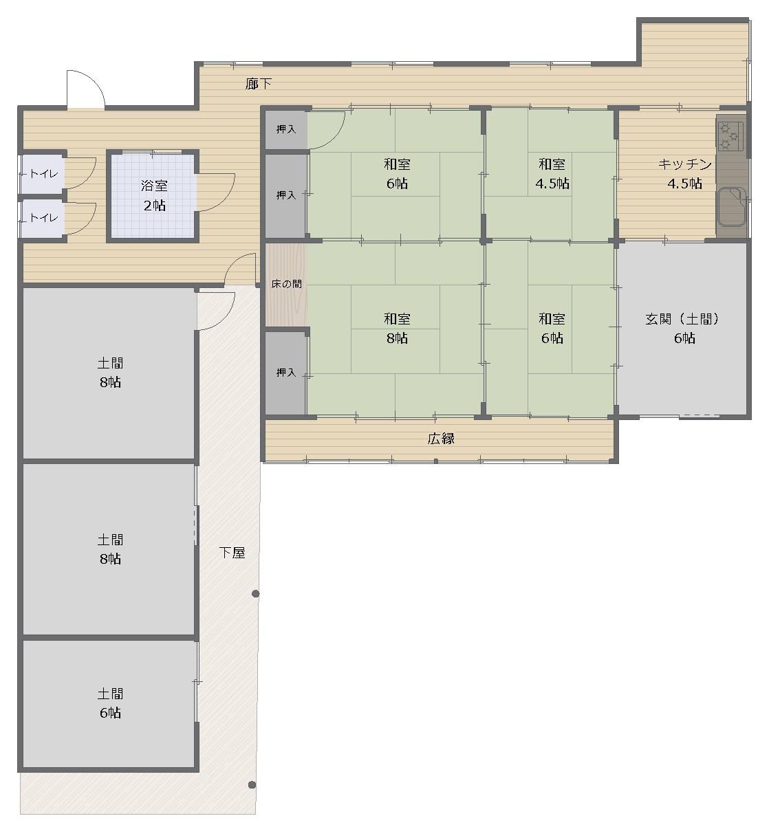
- 4DK
尾道市向島町 中古一戸建ての物件写真
- スタッフのおすすめPOINT!
-
◆建物老朽化の為リフォームが必要となってきますが、ワンフロアが広く お好みの空間へリフォーム・リノベーション可能です!
◆広々駐車スペースは 5台可能! 食育や趣味も楽しめる家庭菜園にも活用できます♪
◆国道317号線近くですので お車でのアクセス良好な立地!
◆向島にはスーパー・ドラッグストア・ホームセンター・医療・教育施設が充実しており、生活利便性の高い住環境♪瀬戸内の穏やかな海を感じながらの島ライフはいかがでしょうか(^^)
物件担当者岡田 佑一
- リノベーションに最適な物件です。
- 駐車場2台可能な物件です。
尾道市向島町 中古一戸建てのアクセスマップ
尾道市向島町 中古一戸建ての物件概要
| 物件番号 | 51416 |
|---|---|
| 住所 | 尾道市向島町 |
| 最寄駅 | 山陽本線 尾道駅まで バス (川尻池下バス停まで徒歩1分)車で21分 |
| 間取 | 4DK |
| 土地面積 | 263.70㎡ |
| 建物面積 | 109.08㎡ |
| 築年月日 | 1926年01月 |
| 構造 | 木造 1階建 |
| 駐車場 | 5台(駐車場料金:-円) |
| 用途地域 | 無指定 |
| 建ぺい率 | - |
| 容積率 | - |
| 地目 | 宅地 |
| 現況 | 空家 |
| 引渡 | 相談 |
| 備考 | ※築年月不詳※別途 「物置 木造2階建て 66.11m2」付属建物あり / 表示面積は地目「宅地」のみ。その他3筆あり(雑種地12m2+畑2筆 計69m2 ) |
| 取引態様 | 仲介 |
| 情報更新日 | 2025/11/28 |
| 次回更新予定日 | 2025/12/28 |
尾道市向島町 中古一戸建てのローンシミュレーション
住宅ローンもおまかせください!
現在の店頭基準金利は2.475%当社優遇金利での住宅ローンだと
借入額450万円(税込) 金利% 年ローン
- 毎月返済額
- 円
頭金0円でボーナス払いなしの場合の金額です。
また、お客様のご条件により金利の優遇幅が変動する場合があります。
返済例は全額ローン(ボーナス返済0円)、元利金等支払、借入期間35年、変動金利(金利優遇適用後)の0.875%にて計算(現在2025年11月適用)
住宅ローンシミュレーターを用いて算出したものであり、実際の借り入れ事例を示すものではなく、また、実際の支払い金額と若干計算結果が異なる場合があります。金利優遇にはいくつかの条件がございます。条件等により優遇が適用されない場合もございます。上記金利は、優遇金利を確約するものではありません。また、お借り入れの際は、銀行事務手数料等別途諸費用が発生する場合がございます。詳細につきましては上記金融機関公式サイト、もしくは弊社住宅ローンアドバイザーにご相談ください。





